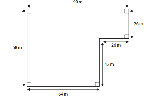
Edexcel Maths Level 1 Practice Set 3